┈┈布吉東站項目┊翰┊三棟洋房 臻品之作┊林┊地段之王 四軌交匯┊學(xué)┊學(xué)校為鄰 書香圣地┊苑┊深圳東站300米┗┈┚天虹商場100米——
參考價格:|均價:
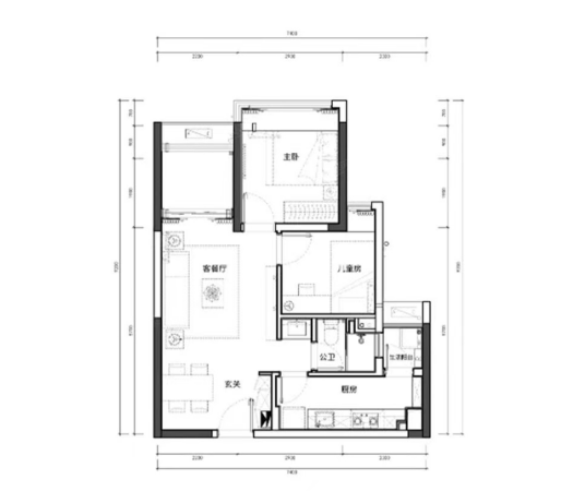
房屋戶型:
住宅類型:
深圳
參考價格:|均價:
房屋戶型:1室 2室 3室
住宅類型:
深圳市龍崗布吉翠豐華庭
╭┄
參考價格:|均價:
房屋戶型:
住宅類型:村委統(tǒng)建房
深圳市中興小學(xué) 廣東省深圳市龍崗區(qū)中興路27號
┏┯布┯吉┯神┯盤┯┓¥┗┷吉┷泰┷茗┷苑┷┛′●_挑戰(zhàn)全布吉最低價_●` 全部一口價出貨
參考價格:|均價:
房屋戶型:1室 2室 3室
住宅類型:
深圳市龍崗區(qū)169公寓附近
從整個深圳的地理版圖來看,布吉剛好處于一個中間的位置,以布吉為圓心,可以用較短的距離快速通達全城各大主要區(qū)域,與深圳各區(qū)綜合通達距離是最近的作為深圳的地理中心。
參考價格:25000~40000|均價:55000元/平
房屋戶型:1室 2室 3室
住宅類型:
布吉街道鐵西路與安吉路交匯處