周邊超300萬方舊改體量3號線白石塘坪地中心小學+坪地中學自帶12班制幼兒園9月份開學自帶5萬㎡商業(萬家)已開業,項目100米沃爾瑪已開業服務
參考價格:25000~40000|均價:26000
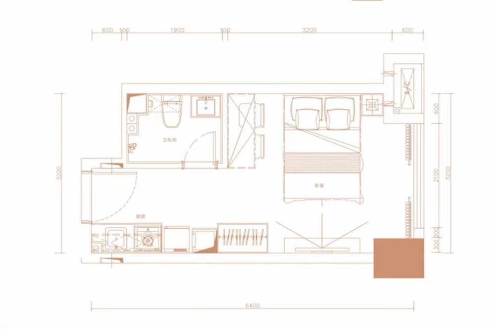
房屋戶型:2室 3室
住宅類型:精裝修
深圳市龍崗區坪地街道龍崗大道與教育南路交匯處西南側
【創城·云璞 9大必看理由】1 創城匠心情懷 深耕坪地創著未來2 占位灣東樞紐門戶 享萬億產業前景3 大道旁城軌門戶 雙地鐵暢行無憂4
參考價格:20001~25000|均價:23600
房屋戶型:2室 3室
住宅類型:精裝修
深圳龍崗龍崗大道與富坪路交匯處
地鐵公園大盤 現樓即買即住,墅級寬奢大尺度,全南朝向40萬平純居公園大城 現樓交付,樓間距超100米 周邊東興外國語、坪地中學等名校學
參考價格:40000~80000|均價:46000元/平
房屋戶型:3室 4室
住宅類型:毛坯房
深圳市龍崗區龍崗大道與龍坪路交匯處
項目處在粵港澳大灣區的深莞惠交匯處,在深圳更是處于龍崗中心城、國際低碳城、坪山新城三城交匯的東進戰略核心位置,且本項目位于龍城正脈
參考價格:25000~40000|均價:37000元/平
房屋戶型:1室 2室 4室
住宅類型:
深圳市龍崗坪地街道龍崗大道與吉祥一路交匯處
位于龍崗城芯的和昌·拾里花都,占據著超900米龍崗大道的沿街面,剛好串起了龍崗中心和大運中心的豐盛資源,囊括了龍崗最核心的配套,包括
參考價格:40000~80000|均價:45000元/平
房屋戶型:1室 3室 4室
住宅類型:
深圳市龍崗區地鐵3號線龍城廣場站C出口